

| 소재지 | 서초구 서초동 1445-3 |
| 기준층면적(3.3㎡) | 임대 746.00 / 전용 304.37 |
| 전용률 | 44.54% |
| 건물규모 | 지하7층~지상24층 |
| 연면적 | 107,508㎡ |
| 엘리베이터 | 총17대 |
| 주차 | 총892대 |
| 사용승인일 | 1995년 |
| 주차대수 | 층당 약14.3대 무료 (무료 : 52평당1대 /유료 : 월10만) |
| 평당 보증금 | 750,000원 |
| 평당 임대료 | 75,000원 |
| 평당 관리비 | 35,000원 |
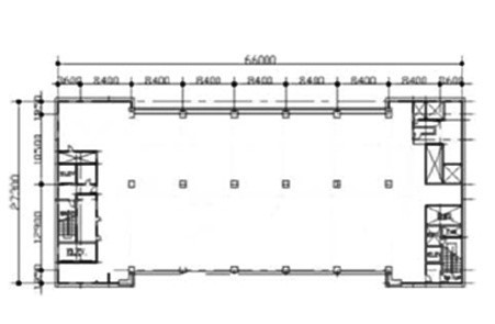
13층 (면적:평) 746.00 / 304.37
보증금 559,500,000원
임대료 55,950,000원
관리비 26,110,000원
12층 (면적:평) 759.04 / 309.69
보증금 569,280,000 원
임대료 56,928,000 원
관리비 26,566,400 원
12+13층 (면적:평) 1,505.04 / 614.06
보증금 1,128,780,000 원
임대료 112,878,000 원
관리비 52,676,400 원
※병/의원 으로 용도변경 협의 가능

문의 : 02 - 3446 - 2263
서울특별시 서초구 효령로 304에 위치한 센터포인트서초는 교통이 매우 편리한 지역에 위치하고 있습니다. 이제 이 곳에서 귀사의 사무실을 운영해 보시는 건 어떨까요?
센터포인트서초 오피스는 최신 시설로 갖추어져 있어 업무에 불편함이 없습니다. 또한, 주변에는 다양한 편의시설이 위치해 있어 업무 외에도 편안한 쉼터를 만들어 줍니다.
오피스 임대는 다양한 크기의 공간을 제공하며, 귀사의 업무에 맞게 선택하실 수 있습니다. 무엇보다 센터포인트서초의 경쟁력 있는 임대료와 다양한 혜택을 제공하고 있으니, 궁금하신 사항은 언제든지 문의해 주세요.
이제 센터포인트서초에서 귀사의 성공을 함께 만들어 보시는 건 어떨까요?
문의 : 02 - 3446 - 2263
'오피스빌딩 > 강남권' 카테고리의 다른 글
| 지희빌딩 임대 정보 : 강남역 사무실, 국기원사거리 전용70평대 (0) | 2025.04.01 |
|---|---|
| 예스코빌딩 임대 정보 : 강남역 학원, 사무실 임대 (0) | 2025.04.01 |
| 허바허바빌딩 임대 정보 : 강남역 가성비 사무실로 다양한 면적을 제공함 (0) | 2025.03.27 |
| 삼원타워 (구,풍림빌딩) 50평대 사무실 임대 (0) | 2023.04.27 |
| 동원F&B빌딩 임대 (0) | 2023.04.11 |
댓글